Vivienda unifamiliar en la Sierra de Madrid

2021 - 2024

Proyecto y Dirección de Obra de vivienda unifamiliar en la Sierra de Madrid.

 

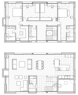
En esta construcción, de dos alturas y de planta rectangular, la fachada principal y las dos laterales se orientan de forma que las piezas vivideras, situadas en estas fachadas, disfruten de las mejores vistas a la sierra, mientras que el resto de estancias se orientan al único lindero medianero.

 

 

 

 

 

 

 

 

 

 

Planta primera

 

 

 

 

 

 

 

 

 

 

 

 

Planta baja